strona główna
|
O firmie
|
Oferta
|
Kredyty
|
kalkulator
|
cennik
|
Kontakt
Mieszkanie - Wynajem
lokalizacja:
Białystok / Centrum
czynsz:
2 000 zł
nr oferty:
12399
pokoje:
2
powierzchnia:
54,0 m²
piętro:
2
stan techniczny:
bardzo dobry
balkon:
brak
kuchnia:
oddzielna, z zabudową kuchenną
Polecamy nieruchomość w bardzo dobrej lokalizacji w centrum Białegostoku.
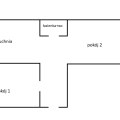
Do wynajęcia mieszkanie dwupokojowe o powierzchni 54m2. Lokal położony jest na drugim piętrze. Rozkład nieruchomości to dwa oddzielna pokoje, kuchnia, łazienka połączona z wc oraz przedpokój. Mieszkanie w bardzo dobrym stanie technicznym, wyposażone w sprzęt AGD oraz umeblowane.
Koszt wynajmu: 2000zł+czynsz(około 600zł)+prąd. Wymagana kaucja w wysokości 3000zł.
Kalkulator kosztów
Mieszkanie spółdzielcze własnościowe z założoną księgą wieczystą i mieszkanie notarialne
Mieszkanie spółdzielcze własnościowe
Pozostałe nieruchomości
Cena nieruchomości:
Prowizja agencji nieruchom.(%)
:
%
wartość:
VAT od prowizji
Podatek od czynnosci cywilnoprawnych:
Taksa (oplata) notarialna :
VAT od taksy(oplaty) notarialnej :
Oplata sadowa:
Wniosek o wpis do księgi wieczystej:
suma oplat (bez uwzględnienia ceny nieruchomości)
do zapłaty
Imię:
*
*
Nazwisko:
*
*
Telefon:
*
Adres E-mail:
*
*
*
Treść wiadomości:
* Pola oznaczone gwiazdką są obowiązkowe do wypełnienia.
zdjęcia
ZDJĘCIA
Trwa aktualizacja notesu ...
mieszkania
domy
działki
obiekty komercyjne
wynajem
oferta specjalna
DDCMS - copyright DDSOFT 2011
Witryna agema.net.pl używa ciasteczek.
Witryna używa informacji zapisanych za pomocą ciasteczek w celach dostosowania zawartości strony, optymalizacji oraz statystycznych. W przeglądarkach internetowych można zmienić ustawienia dotyczące obsługi cookies. Korzystanie z naszej witryny bez zmiany ustawień dotyczących cookies oznacza, że będą one zapisane w pamięci Państwa urządzenia.